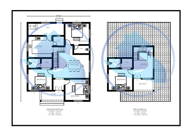
General Details
Total Area : 2025 Square Feet
Total Bedrooms : 4
Type : Double Floor
Style : Contemporary
Construction Cost : 41 Lac’s

Specifications
Ground Floor
Number of Bedrooms : 3
Bathroom Attached : 2
Dressing Area
Living Room
Dining Room
Sit out
Kitchen
Work Area
Store Area
First Floor
Number of Bedrooms : 1
Bathroom Attached : 1
Dressing Area
Upper Living
Balcony
FOR MORE KERALA HOME DESIGNS

2025 Square Feet Double Floor Contemporary Home Design
We are good about home designing as which it is the total creative solution for the best programmed interior of our homes. This “2025 Square Feet Double Floor Contemporary Home Design” is designed to be built in an estimation of 41 Lac’s. It includes 4 bedrooms with the combination of attached bathrooms and a common bathroom. This plan is a double floored which makes out a distinctive and unique design. Also it provides the best conceptual planning with aesthetic and technical solutions which are applied to achieve the desired result. The living and dining room are very well designed and the kitchen along with work area are really spacious. This plan is designed in a manner for the latest interior designs. This plan is well executed by Vineeth, Pentagon Arkitects. For further details contact the designer.
