2338 Square Feet Double Floor Contemporary Home Design
We have cratered the dreams of lot of people who are in fond of home designs and interior works. With all the credits to our crew members whoever had committed their immense work towards the new home design project “2338 Square Feet Double Floor Contemporary Home Design” to furnish up a masterpiece among the series, we first of all, introduce the new home design with a number of 3 bedrooms along with the combination of attached bathrooms and a common toilet.
According to the designer, the design is well specified with the latest interior home designs which are mostly applied over the living and dining rooms to enrich the look of the beauty of the home design and also over the spacious kitchen which almost provide the entire home design more impressive.
Many people’s aspirations of beautiful homes and interior design projects have been dashed by us. We first introduce the new home design, which has four bedrooms and a combination of attached bathrooms and a common toilet. We give all the credit to our crew members who have dedicated countless hours to the new home design project, “2338 Sq Ft Double Floor Contemporary 3 BHK Home Design,” in order to create a masterpiece among the series. The designer claims that the layout is precisely planned out using the newest interior design trends, which are mostly utilized in the living and dining rooms to enhance the aesthetic appeal of the design as well as in the roomy kitchen.
This three-bedroom 2338 Square Feet Double Floor house plan cleverly incorporates an open kitchen to provide an air of spaciousness and openness. In the kitchen, socialization and shared experiences are encouraged. This design prioritizes functionality, and the well-stocked kitchen is a great place to socialize while you’re cooking.
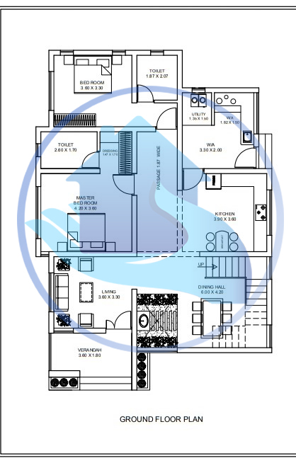
2338 Square Feet Double Floor General Details
Total Area : 2338 Square Feet
Total Bedrooms : 3
Type : Double Floor
Style : Contemporary


Specifications
Ground Floor is designed in 1532 Square Feet
Number of Bedrooms : 2
Bathroom Attached : 2
Dressing Area
Living Room
Dining Room
Sit out
Courtyard
Modular Kitchen
Wash Area
Utility Area
Work Area
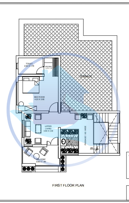
First Floor is designed in 806 Square Feet
Number of Bedrooms : 1
Bathroom Attached : 1
Dressing Area
Upper Living
Study Area
Balcony
Terrace Area
FOR MORE KERALA HOME DESIGNS
