General Details
Total Area : 2345 Square Feet
Total Bedrooms : 4
Type : Double Floor
Style : Contemporary
Construction Cost : 45 Lac’s
Specifications
Number of Bedrooms : 4
Bathroom Attached : 4
Common Toilet
Upper Living
Living Room
Dining Room
Sit Out
Car Porch
Kitchen
Work Area
Balcony
FOR MORE KERALA HOME DESIGNS


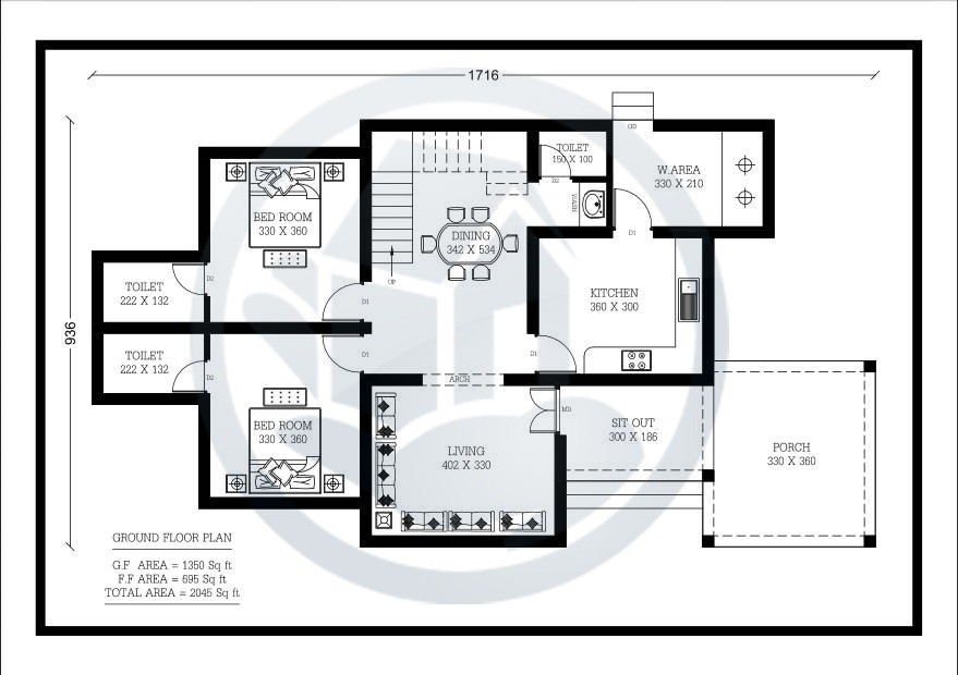
Tremendous 2345 Sq Ft Kerala Home Designs
Its a part of our indulgence to have informed you that our designers have designed a new design project “Tremendous 2345 Sq Ft Kerala Home Designs”. This stylish home design is introduced with a number of 4 bedrooms in a combination of attached bathrooms and a common toilet.

According to the designer, the design is specified with the latest interior designs which are applied for the living and dining rooms which also enrich the look of the spacious kitchen more attractive.
