1900 Square Feet Double Floor Contemporary Home Design
We have cratered the dreams of lot of people who are in fond of home designs and interior works. With all the credits to our crew members whoever had committed their immense work towards the new home design project “1900 Square Feet Double Floor Contemporary Home Design” to furnish up a masterpiece among the series, we first of all, introduce the new home design with a number of 3 bedrooms along with the combination of attached bathrooms and a common toilet. According to the designer, the design is well specified with the latest interior home designs which are mostly applied over the living and dining rooms to enrich the look of the beauty of the home design and also over the spacious kitchen which almost provide the entire home design more impressive.
According to the designer, the new design is well specified with the latest interior home designs which are mostly applied over the living and dining rooms to enrich the look of the beauty of the home design and also over the spacious kitchen which almost provide the entire home design more impressive. Describing the newly designed 1900 square feet home, we can say that the home is too cost friendly which can be beard by middle class peoples.
As per the aspect of the designer, the design is estimated to be constructed in a contemporary style which includes all the works of the home and none of any works will be remained yet to be finished. One of the major factor of this new home design is that the interior designs are made perfect for the family and every rooms are created with inbuilt shelves. Which in overall means the home is better for a budget home category. For further proceedings of your dream home construction, you can contact the designer from the below mentioned details.


General Details
Total Area : 1900 Square Feet
Plot Area : 7 cents
Total Bedrooms : 3
Type : Double Floor
Style : Contemporary
Construction Cost : 34 lac’s
Specifications
Ground Floor
Number of Bedrooms : 1
Bathroom Attached : 1
Living Room
Dining Room
Sit out
Common Toilet
Prayer Room
Car Porch
Kitchen
Work Area
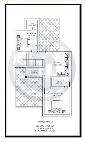
First Floor
Number of Bedrooms : 2
Bathroom Attached : 2
Upper Living
Balcony
FOR MORE KERALA HOME DESIGNS

