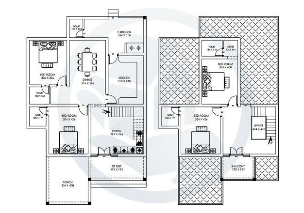
General Details
Total Area : 2456 Square Feet
Total Bedrooms : 4
Type : Double Floor
Style : Contemporary
Construction Cost : 50 Lac’s

Specifications
Number of Bedrooms : 4
Bathroom Attached : 4
Common Toilet
Living Room
Dining Room
Upper Living
Sit out
Car Porch
Kitchen
Work Area
Balcony
FOR MORE KERALA HOME DESIGNS

2456 Sq Ft Contemporary Double Floor Home Design
This “2456 Sq Ft Contemporary Double Floor Home Design” is designed to be built in 2456 square feet. It includes 4 bedrooms with the combination of attached bathrooms and a common bathroom. This plan is a double floored which makes out a distinctive and unique design and is estimated for about 50 lac’s. It is proved that we are good about home designing as which it is the total creative solution for the best programmed interior of our homes. Also it provides the best conceptual planning with aesthetic and technical solutions which are applied to achieve the desired result. The living and dining room are very well designed and the kitchen along with work area are really spacious. This plan is designed in a manner for the latest interior designs. This plan is well executed by P D Vineeth, Pentagon Architets. For further details contact the designer.
