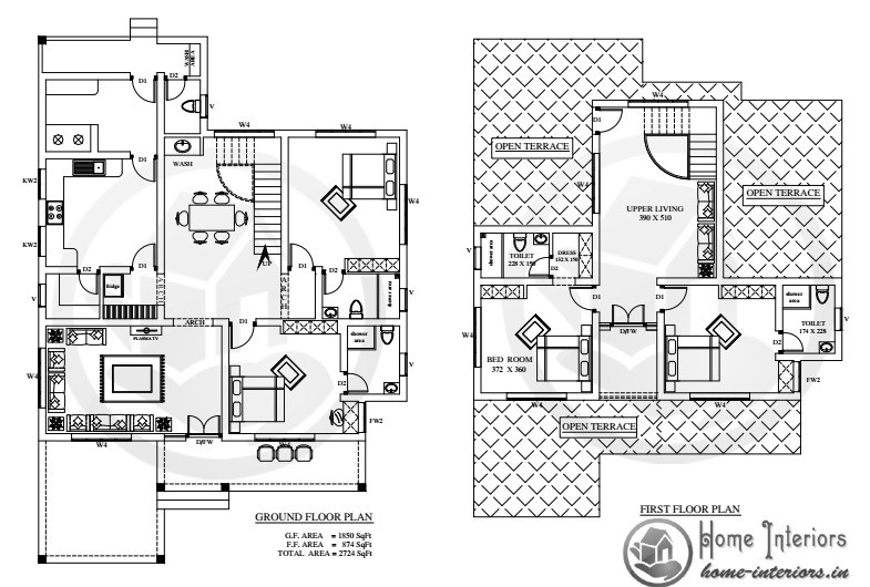
Its our pursuit of pleasure to inform you that our designers have sketched a new blueprint of the project “Newfangled Double Floored Kerala Home Designs” in 2724 square feet . It includes 4 bedrooms with the combination of attached bathrooms and a common bathroom. This plan is a double floored which makes out a distinctive and unique design and is estimated for about 50 lakh. It is proved that we are good about interior designing as which it is the total creative solution for the best programmed interior of our homes. Also we provides the best conceptual planning with aesthetic and technical solutions which are applied to achieve the desired result. The living and dining room are very well designed and the kitchen along with work area are really spacious. This plan is designed in a manner for the latest interior designs. This plan is well executed by P D Vineeth, Pentagon Architets. For further details contact the designer.
Specifications
Total Area : 2724 Sq Ft
Total Bedroom : 4
Floor : Double Floored
Style : Contemporary
Approximate Cost : 50 Lakh
For Construction : Call Now + 91 7025 911 911
For More Kerala Home Designs
Newfangled Double Floored Kerala Home Designs
Bedrooms : 4
Attached Toilet
Common Toilet
Living Room
Dining Room
Sit out
Prayer Hall
Kitchen
Fire kitchen
Store
Work area
Car Porch


